
jc聚彩 二、构造及工作原理
jc聚彩 1 、单机布袋除尘器结构
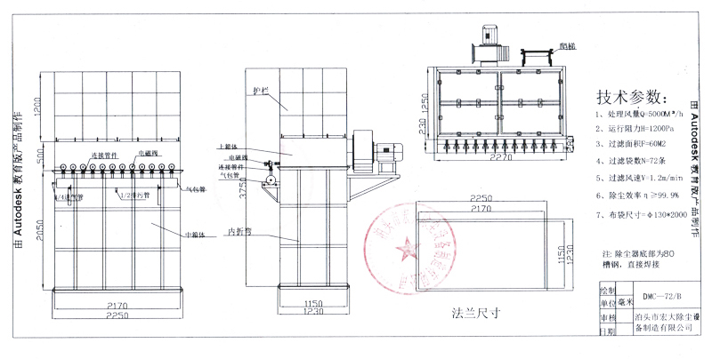
jc聚彩 该设备主要有以下部分组成:
( 1 )箱体:包括袋室、净气室、多孔板、 滤袋 、滤袋骨架、检修门、箱体设计耐压 5000Pa 。
( 2 )喷吹系统:包括主气管、喷吹管、脉冲阀、控制仪。
( 3 )进气排灰部分有两种形式:一种为标准带灰斗式,另一种为敞开法兰式。
2 、工作原理
含尘气体由进气口进入灰斗或通过敞开法兰口进入滤袋室,含尘气体透过滤袋过滤为净气进入净气室,再经净气室排气口,由风机排走。粉尘积附再滤袋的外表面,且不断增加,使袋除尘器的阻力不断上升,为使设备阻力不_过 1200Pa ,袋式 除尘器 能继续工作,需定期_滤袋上的粉尘。清灰是由程序控制器定时顺序启动脉冲阀,使气包内压缩空气( 0.5~0.7MPa) ,由喷吹管孔眼喷出(称一次风)通过文氏管诱导数倍于一次风的周围空气(称二次风)进入滤袋在瞬间急剧膨胀,并伴随着气流的反方向作用抖落粉尘,达到清灰的目的。

。
三、选型
1 、型号说明
该单机有 32 、 48 、 64 、 80 、 96 、 112 六种规格,其中每个规格分为两种安装形式,以满足不同场合的使用要求,具体型号说明如下:
2 、选型参数及选型原则
( 1 )布袋除尘器选型的主要技术参数为风量、气体温度、含尘浓度与湿度。根据工艺设计的风量、气体温度、含尘浓度的数值,按略小于技术性能表中的数值为原则,其相对应的除尘器型号,即为所需要的收尘器型号 .
( 2 )表中的耗气量为工厂集中供气时的情况,如单独使用空压机时,表中的耗气量要放大 1.5 倍。
( 3 )压缩空气耗量栏中,所提出的耗气量为该型号设备的耗气量。
3 、设备外形及基础(见附图),我公司还可根据用户场地情况设计符合用户要求外形的除尘器。
|
jc聚彩 |
DMC-32 |
DMC-48 |
DMC-64jc聚彩 |
DMC-80 |
DMC-96jc聚彩 |
DMC-112jc聚彩 |
||||||||||||||||
|
总过滤面积( m2 )jc聚彩 |
24 |
36 |
48 |
60 |
72jc聚彩 |
84jc聚彩 |
||||||||||||||||
|
过滤风速( m/min )jc聚彩 |
1.04 ~ 1.67jc聚彩 |
1.15 ~ 1.62 |
1.21 ~ 1.74jc聚彩 |
1.25 ~ 1.67 |
1.27 ~ 1.62 |
1.28 ~ 1.68jc聚彩 |
||||||||||||||||
|
处理风量( m3/h ) |
1500 ~ 2400 |
2500 ~ 3500jc聚彩 |
3500 ~ 5000 |
4500 ~ 6000 |
5500 ~ 7000 |
6500 ~ 8500 |
||||||||||||||||
|
滤袋数量(条)jc聚彩 |
32 |
48 |
64jc聚彩 |
80jc聚彩 |
96jc聚彩 |
112jc聚彩 |
||||||||||||||||
|
耗气量( m3/min ) |
0.032jc聚彩 |
0.048jc聚彩 |
0.064jc聚彩 |
0.08 |
0.096jc聚彩 |
0.11 |
||||||||||||||||
|
入口浓度( mg/Nm3 )jc聚彩 |
200 |
|||||||||||||||||||||
|
出口浓度( mg/Nm3 )jc聚彩 |
50 |
|||||||||||||||||||||
|
喷吹压力( Mpa ) |
0.5 ~ 0.7jc聚彩 |
|||||||||||||||||||||
|
承受负压( Pa )jc聚彩 |
5000jc聚彩 |
|||||||||||||||||||||
|
设备阻 力( Pa ) |
≤1200 |
|||||||||||||||||||||
|
脉冲阀 |
规格 |
jc聚彩 |
||||||||||||||||||||
|
数量(个)jc聚彩 |
||||||||||||||||||||||
|
电机型号功率 |
Y90S-2jc聚彩 |
Y90L-2jc聚彩 |
Y100L-2 |
Y132S1-2 |
Y132S1-2 |
Y132S2-2jc聚彩 |
||||||||||||||||
|
( KW ) |
1.5jc聚彩 |
2.2jc聚彩 |
3.0jc聚彩 |
5.5 |
5.5jc聚彩 |
7.5 |
||||||||||||||||
jc聚彩 |
|
|||||||||||||||||||||
我厂提供的产品不含除尘器三口(进气口、排气口、排灰口)以外的部分。如主排风机、非标管道、保温材料、空气压缩机、输送设备安装及电线电缆等,如用户需要,我厂可代为办理。
1. 供货范围
( 1 )除尘器本体一台(套)
( 2 )除尘器滤袋一套(含骨架等)
( 3 )电气控制柜一台(套)
( 4 )锁风装置一台(套), B 型设备不含其项
( 5 )压气系统元件一台(套)
2. 服务方式
( 1 )负责指导安装,质量检测和跟踪,培训岗位工人和相关技术人员。
( 2 )负责调试达标。
( 3 )建立长期服务网店,长期提供易损的配备件并随时到厂为用户解决相关问题,并提供相关技术咨询。
( 4 )如我们样本中的定型产品不能满足工艺要求时,可根据用户提出的要求,对收尘器进行特殊设计制造。
3. 提供的资料
( 1 )提供除尘器安装调试说明书
( 2 )提供除尘器使用说明书
( 3 )提供除尘器电控装置接线图
( 4 )提供除尘器电控装置操作说明书
( 5 )提供发货清单
( 6 )提供产品合格证书