jc聚彩

XMC脉冲布袋除尘器|XMC脉冲除尘器|除尘设备-XMC脉冲布袋式除尘器-宏大除尘设备

||资讯| 网站地图
宏大除尘设备,除尘器,除尘配件
热门点击: 布袋除尘器|气箱除尘器|脉冲除尘器|旋风除尘器|单机除尘器|行业除尘器|除尘器配件|除尘布袋|
XMC脉冲布袋除尘器-XMC脉冲除尘器-除尘设备
XMC脉冲布袋式除尘器
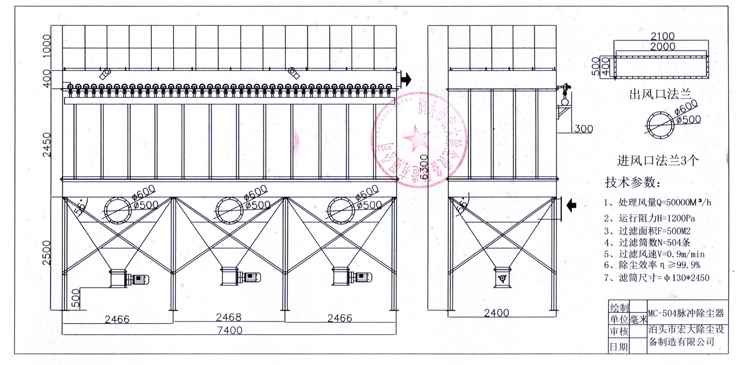
XMC脉冲布袋式除尘器是采用高压(0.5~0.4MPa)大流量脉冲阀逐条滤袋喷吹清灰的技术。XMC脉冲除尘器能够从大量粉尘的气体中,高浓度的气体中,把99.9%以上的粉尘收集下来。不仅广泛用于水泥厂的粉尘治理,XMC脉冲布袋除尘设备而且还广泛用于非金属矿微细粉深加工领域。
产地:河北省>泊头市
供应商:泊头市宏大除尘设备制造有限公司
技术咨询热线:
13785759289

XMC脉冲布袋式除尘器详细内容介绍information

一、概述

     XMC 型 脉冲布袋除尘器 是我公司引进德国具有上九十年代技术水平的除尘器进行吸收,并结合中国特点,研制出来的一种新型除尘器。该除尘器是采用高压( 0.5~0.4MPa )大流量脉冲阀逐条滤袋喷吹清灰的技术。能够从大量粉尘(颗粒 £ 5μm ,含量 ³ 70% 以上)的气体中,高浓度( 1300g/m3njc聚彩) 的气体中,把 99.9% 以上的粉尘收集下来。 1997 年底通过省级鉴定,该除尘器在环保行业有很高水平。目前在新的环保标准条件下,不仅广泛用于水泥厂的粉尘治理,而且还广泛用于非金属矿微细粉深加工领域,在电力、化工、冶金、钢铁等行业也有较好的应用前景。 

二、构造及工作原理

     1 、脉冲布袋除尘器结构

     该设备主要有以下部分组成:

    1 )箱体:包括袋室、预除尘室、净气室、多孔板、 滤袋 、滤袋 骨架 。箱体设计耐压 9000Pa

    2 )喷吹系统:包括主气管、喷吹管、脉冲阀、控制仪。

    3 )灰斗及排灰部分有两种形式:一种为灰斗直接与 卸灰阀 连接,另一种为灰斗通过输送设备(如螺旋输送机)与卸灰阀连接。

      2 、工作原理 

     含尘气体进入除尘器已扩大的灰斗进行预收尘,通过导流板均布于各条滤袋之间,粉尘阻留于滤袋外表面,为使设备阻力不_过 1200Pa ,高压气体经 电磁阀 产生脉喷,使气包内压缩空气( 0.5~0.7MPa) ,由喷吹管孔眼喷出(称一次风)通过文氏管诱导数倍于一次风的周围空气(称二次风)进入滤袋在瞬间急剧膨胀,并伴随着气流的反方向作用抖落粉尘,达到清灰的目的。使用微机自动控制装置,根据粉尘随意调整清灰周期和脉喷时间,在收尘器的范围内运行。

三、选型

     1 、型号说明

     该单机有 60-2 60-3 60-4 60-5 60-6 70-5 70-6 70-7 70-8 九种规格。具体型号说明如下:

      2 、选型参数及选型原则

    1 )脉冲布袋除尘器选型的主要技术参数为风量、气体温度、含尘浓度与湿度。根据工艺设计的风量、气体温度、含尘浓度的量大数值,按略小于技术性能表中的数值为原则,其相对应的除尘器型号,即为所需要的除尘器型号,采用的滤袋根据入口浓度、气体温度、湿度含量确定。

    2 )表中的耗气量为工厂集中供气的情况,如单独使用空气机时,实际的耗气量要增大到表中数值的 1.5 倍。

     3 )压缩空气耗气量栏中,所提出的耗气量为该型号设备的耗气量。

      3 、设备外形及基础见附图,我厂还可根据用户场地情况设计符合用户要求的脉冲布袋除尘器。
XMC型脉冲布袋除尘器
  
XMC型脉冲布袋除尘器 
XMC型脉冲布袋除尘器
XMC型脉冲布袋除尘器

相关产品products list

除尘布袋-布袋除尘器布袋
除尘布袋堪称袋式除尘器的心脏,除尘布袋是袋式除尘器运行过程中的关键部分,通常圆筒型滤袋垂直地悬挂在除尘器中。
DMF-T-62直通式脉冲阀-直通式电磁脉冲阀
宏大生产的DMF-T-62直通式脉冲阀阀其进出口中心为同一直线,其进气口与储气管连接、出气口与喷吹管连接,气流畅通,能提供符合要求的脉冲气流 。DMF-T-62S直通阀的特点:直通式电磁脉冲阀的构造特点是空气进出口中心线在一条直线上,脉冲阀膜片把脉冲阀分为前,直通式脉冲阀后两个气室,接通压缩空气时脉冲阀处于关闭状态,开启动作原理与直角阀相同,只是气流喷射时的流动方向。
DMF-Z-65s电磁脉冲阀-5寸直角型脉冲电磁阀
RMF-Z-65S直角式脉冲阀是2.5寸直角型脉冲电磁阀,进气口和出气口之间的夹角为90度,RMF-Z-65S直角式脉冲阀适合于储气筒和除尘器喷吹管的连接。电压可分为:AC110V/AC220V/DC24V等。
企业简介|工程实例|生产场景|公司业绩|主要客户|联系方式| 网站地图
公司名称:泊头市宏大除尘设备制造有限公司 公司地址:泊头市开发区环城东路南首1号 电话:0317-8392799 8162866 传真:0317-8392977 
手机:18931764475 网址:http://die-youxin.com 
宏大除尘设备 2014(C)版权所有 并对网站所有内容保留解释权  
网站建设:中科四方